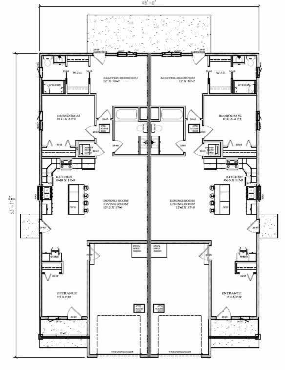
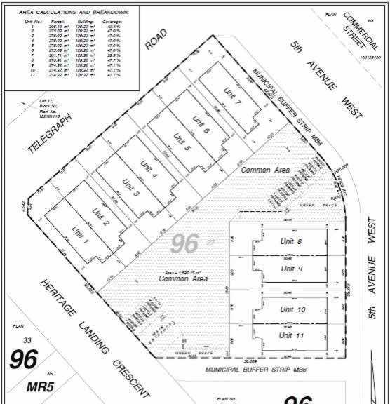
Cornerstone Condos

Battleford, SK

A tranquil gated community in the town of Battleford, SK.

For more about the Cornerstone Condos development, visit the website.

Visit Website